Poiroux
Joli coin de verdure vallonné aux portes de l'Océan
Vie municipale
Mot du maire
Conseil municipal
Composition du Conseil Municipal
Délibérations
Comptes-rendus, procès-verbaux, listes des délibérations
Bulletins communaux
Budgets
Urbanisme
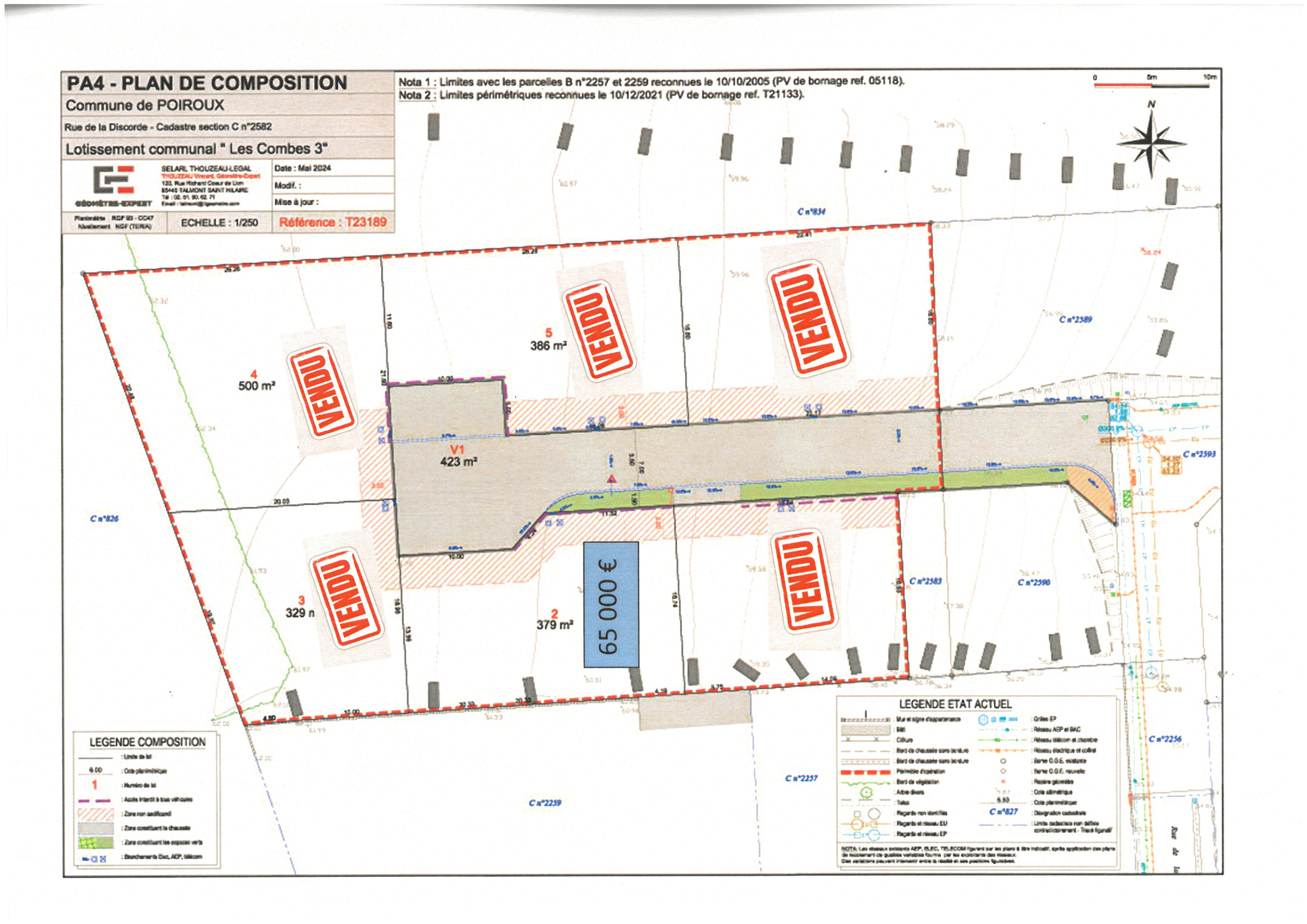
1 terrain à vendre
Formulaires de demande d'urbanisme
Guichet unique urbanisme (lien)
Cadastre
Lotissements
Population
Plan Local d'Urbanisme
Vie locale
Médiathèque
Cimetière
Collège
Ecole
Fourrière animale municipale
Location de salles
MARPA
Ordures ménagères et déchèterie
Transports scolaires
Réglementation
Vie économique
Agriculture
Artisans - Commerçants
Santé et Bien-être
Label Apicité
Label Apicité
Tourisme
Lac de Finfarine
La folie de Finfarine
Sentiers pédestres et vélo
Locations saisonnières
Camping
Associations
Liste des associations
Album photos
pcs - dicrim
PLAN COMMUNAL DE SAUVEGARDE et DICRIM
Navigation des images
vente lots les combes 3
Publié le
2 octobre 2025
à
3507 × 2480
dans
1 terrain à vendre
Les commentaires sont fermés.
En poursuivant votre navigation sur le site vous acceptez l'installation de cookies sur votre terminal.
Plus d'infos sur les cookies
J'accepte